建築図面(平面図、立面図、断面図、矩計図、各種詳細図)から構造図・電気設備図・空調設備図・衛生設備図・各種施工図・土木図・下水計画図・道路図・機械部品図・系統図・地形図・白地図まで、青図・野帳のCADトレース外注なら「CADトレース」職工所にお任せ下さい。一枚からでも御注文承ります。
CADトレース制作事例
CADトレースの制作事例をいくつかご紹介させていただきます。経年劣化による精度が低い図面もお気軽にご相談下さい。数値が分からない場合、完全CAD化は難しいのですが、数多くの図面トレースをこなしてきた職工所スタッフがトレース作業と合わせながら完成データを作成します。
¥9,500~/A1サイズまで
※このサイトは広告が含まれております。リンク先の他社サイトにてお買い求めの商品、サービス等について一切の責任を負いません。
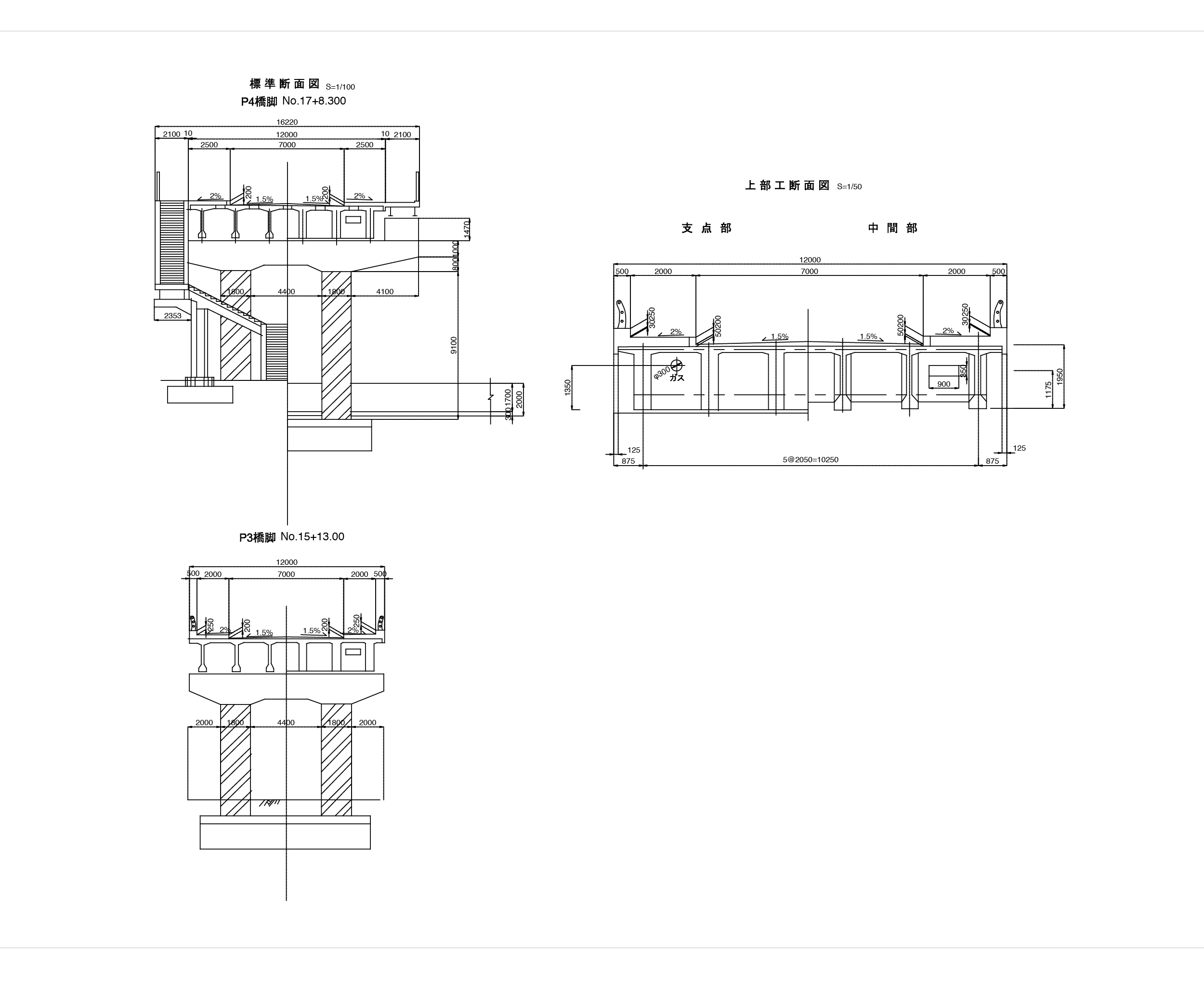
構造詳細図トレース
(東京都・T社)
ゼネコン様より社内スタッフ不足につきCADトレース希望とのことでご依頼。
不要なゴミ(原図内の点や線)を綺麗にしてほしいとのご要望。
公図トレース
(東京都・住宅メーカーK社)
社内で保存されていた古い公図をCADデータ化して保存しておきたいとのことでご依頼。
家具キープラントレース
(ポイント)
家具キープラン図のトレースは、その先の家具リストを正しく伝えるために必要。家具番号を正しく伝えることが大事。
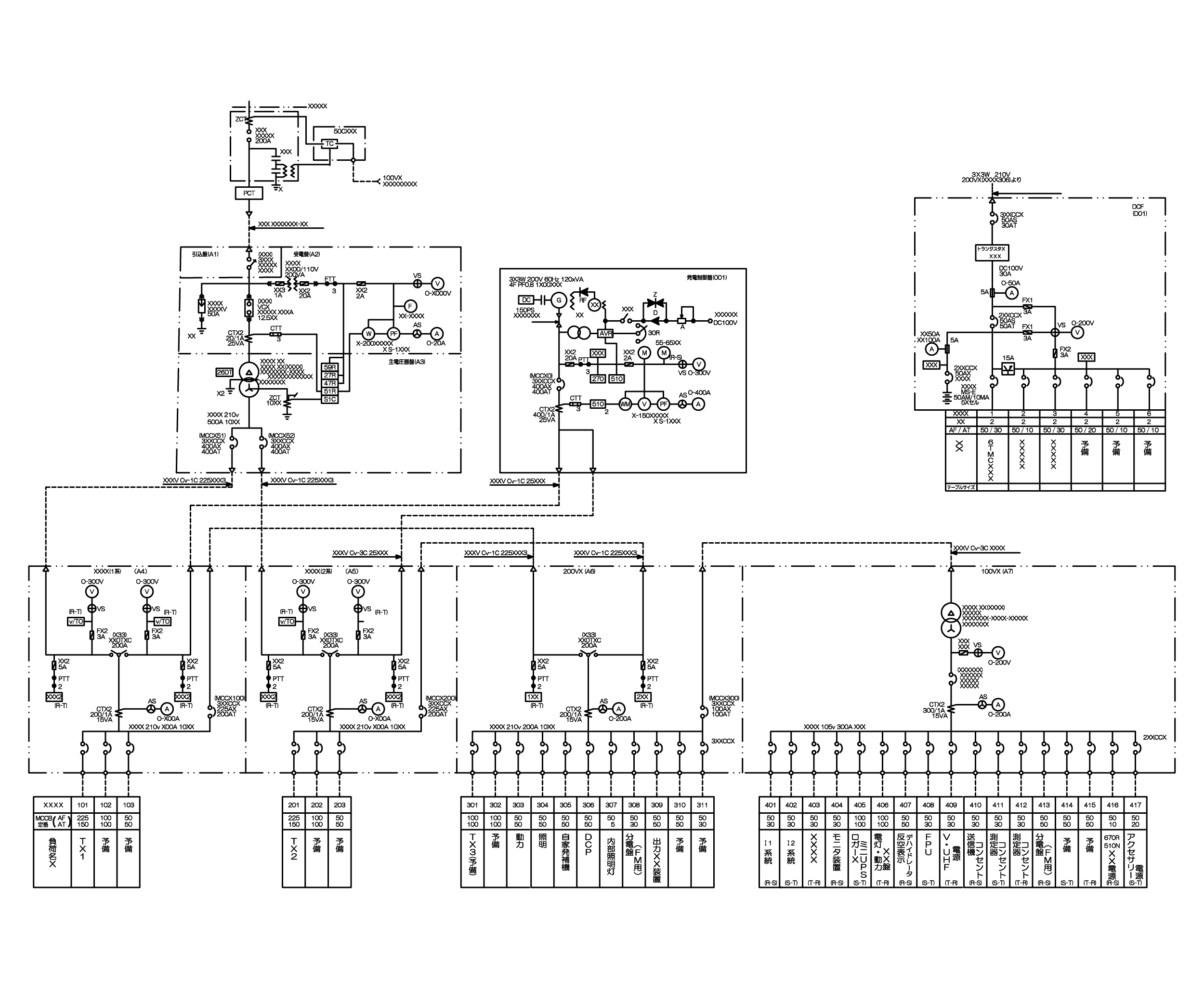
電気図トレース
(ポイント)
電気図は縮尺よりも、正確性、見やすさが大切。設備関係図は増改築や解体工事においても重要であるため、間違いのないように留意する。
立面図トレース
(ポイント)
立面図は視覚的な確認のために必要な図面なので、高さの要素、窓の位置、マテリアルの雰囲気などの再現に気をつける。
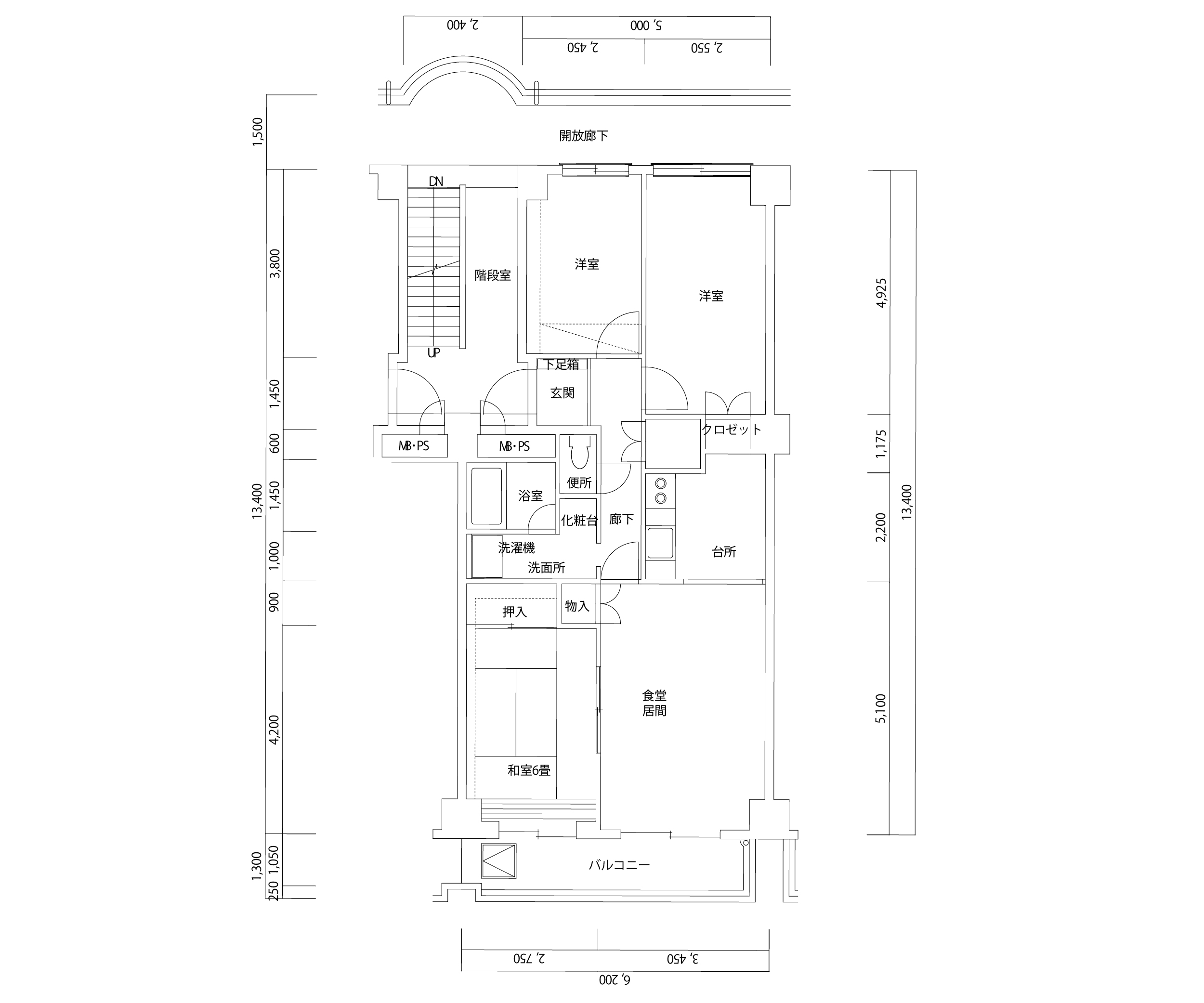
マンション平面図トレース
(ポイント)
マンション平面図などは不動産情報の場合など、画像の縮尺が合わない場合も多いので、記載の寸法を優先し描写することに気をつける。
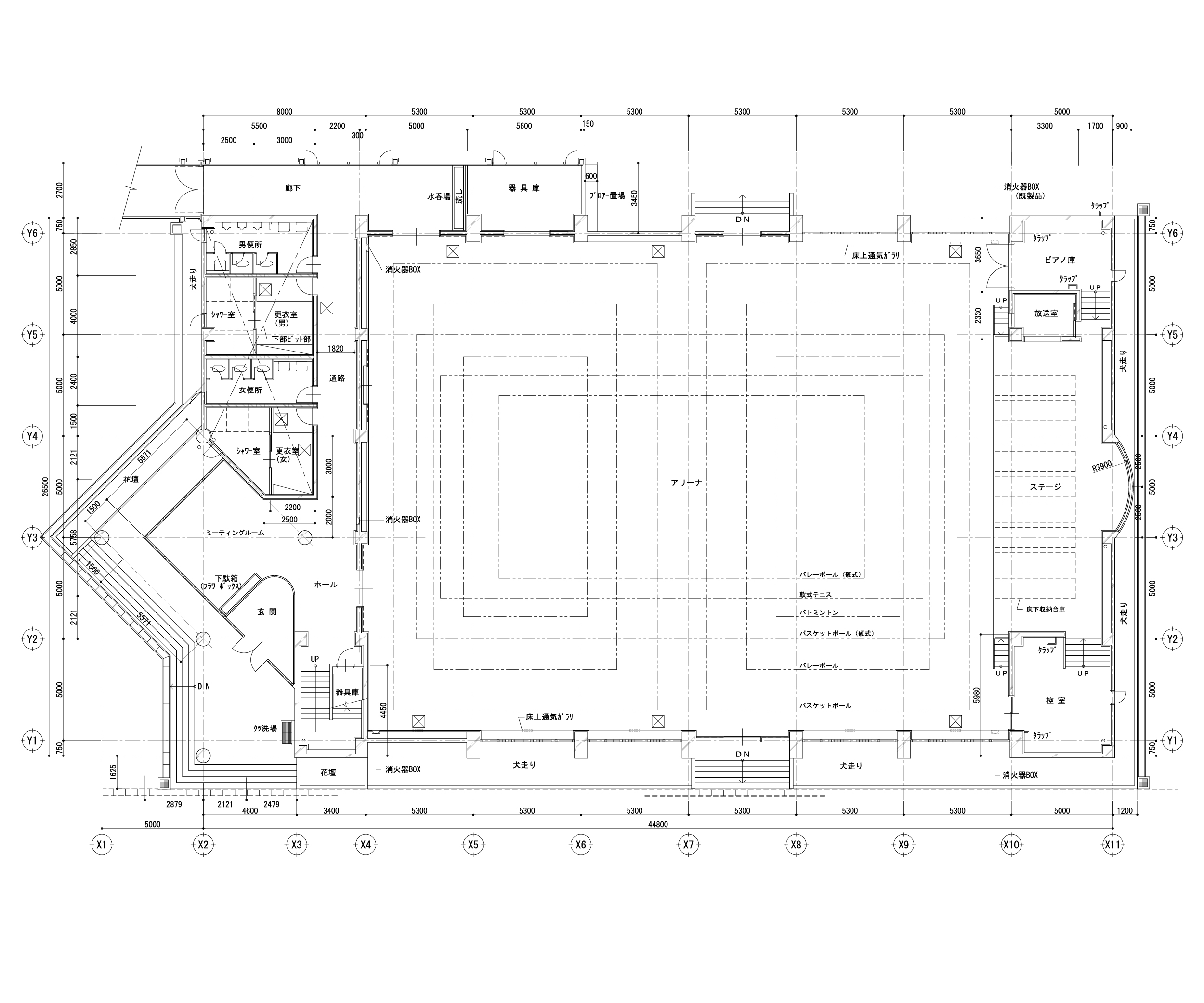
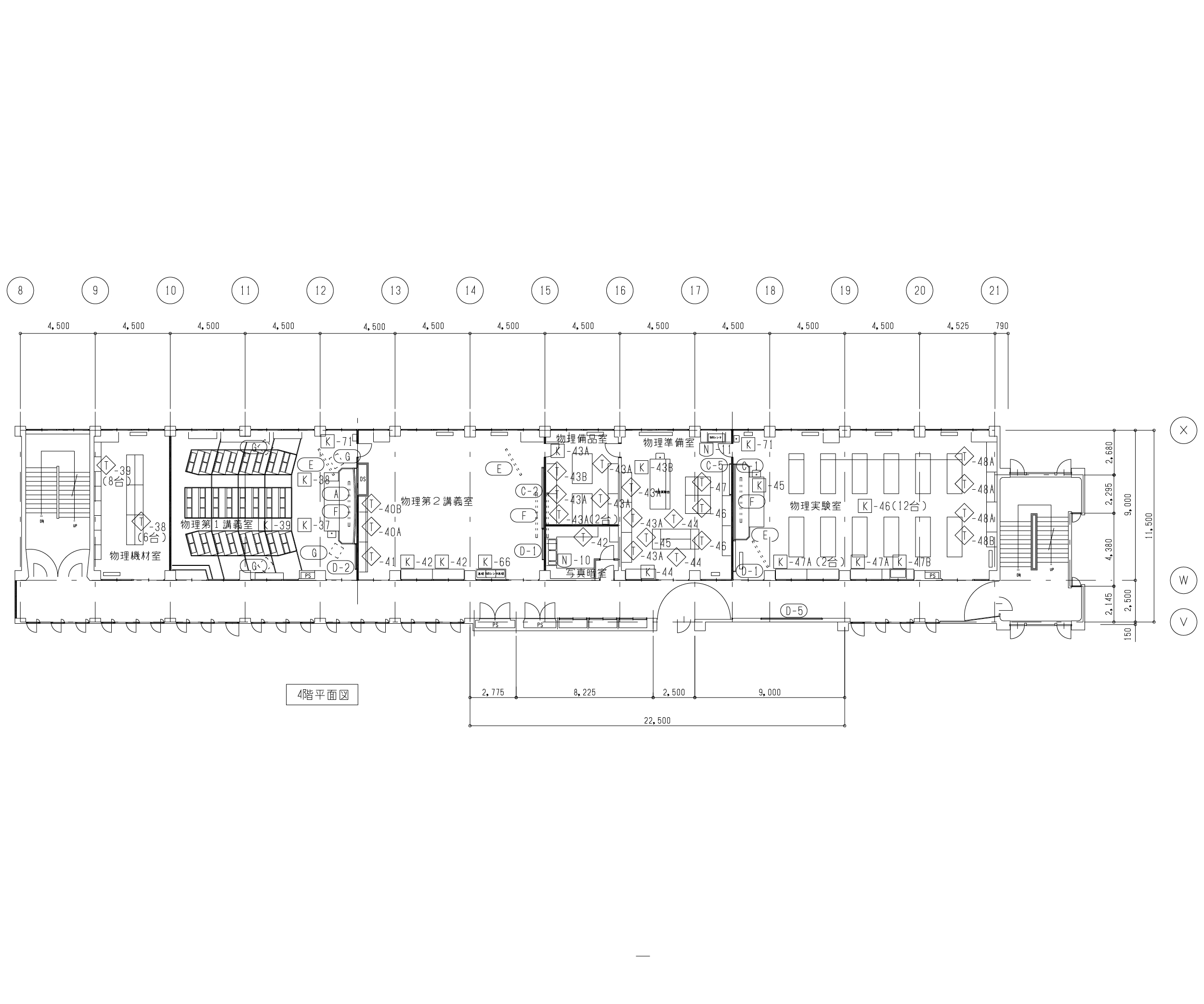
平面図トレース
(ポイント)
寸法線の数字を正に描写をする。不明な場所はある程度寸法が綺麗な数字(グリッドに従うなど)になるように描写していく。
立面図トレース
(ポイント)
立面図は視覚的な確認のために必要な図面なので、高さの要素、窓の位置、マテリアルの雰囲気などの再現に気をつける。
構造物トレース
(ポイント)
寸法線の数字を正に描写をする。不明な場所はある程度寸法が綺麗な数字(グリッドに従うなど)になるように描写していく。
CAD・製図グッズ一覧
※タップで各カテゴリページが開きます。
人気記事職工所スタッフが選ぶおすすめCAD・製図グッズ
人気記事CADおすすめの有料・無料ソフト4種類13選まとめ|口コミ募集中
おすすめCAD・製図グッズ
職工所スタッフ厳選のよく売れているCAD・製図グッズを集めてみました。下の記事では、専門性や参考度をランキング化(★5つ)して紹介。「 職工所スタッフが選ぶおすすめCAD・製図グッズ 」も参考に‼
↓タップしてAmazonで確認する↓

![お電話・FAXでのお問い合わせ [営業時間]10:00~17:00 土・日・祝日定休 TEL:045-321-1297 FAX:050-6860-5155 問い合わせ先](/wp-content/themes/cocoon-child-master/images/text_tel.gif)


















